全国统一咨询热线
13883148831

QQ在线咨询 13883148831

装修案例 / 重庆大学城装修案例_室内装修效果图-达瑞装修案例

您当前所在位置:首页 > 装修案例

装修案例

重庆大学城装修案例_室内装修效果图-达瑞装修案例

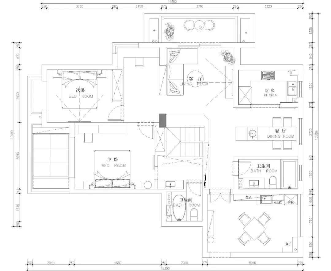
(达瑞装饰)大学城装修公司-恒大未来城

创建时间:2020年01月03日 10:13:28

微信图片_20200103100015.jpg微信图片_20200103100020.jpg微信截图_20200103100107.png微信截图_20200103100054.png微信截图_20200103100038.png微信截图_20200103100122.png Jqu重庆装修公司_重庆装饰公司_达瑞装饰【官网】

渝公网安备 50010602501415号