全国统一咨询热线
13883148831

QQ在线咨询 13883148831

装修案例 / 重庆大学城装修案例_室内装修效果图-达瑞装修案例

您当前所在位置:首页 > 装修案例

装修案例

重庆大学城装修案例_室内装修效果图-达瑞装修案例

重庆装修公司—东南亚风客厅案例

创建时间:2018年04月14日 15:31:24

 重庆装修公司达瑞装饰东南亚风客厅案例FUs重庆装修公司_重庆装饰公司_达瑞装饰【官网】

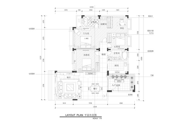
平面图FUs重庆装修公司_重庆装饰公司_达瑞装饰【官网】

重庆装修公司,东南亚风重庆装修公司,东南亚风重庆装修公司,东南亚风重庆装修公司,东南亚风重庆装修公司,东南亚风重庆装修公司,东南亚风重庆装修公司,东南亚风FUs重庆装修公司_重庆装饰公司_达瑞装饰【官网】

渝公网安备 50010602501415号