装修案例
重庆大学城装修案例_室内装修效果图-达瑞装修案例
重庆装修公司—金科.廊桥水乡4栋
创建时间:2016年11月29日 16:41:12金科.廊桥水乡4栋的一户型是重庆大学城装修公司达瑞装饰设计师余恒舟进行设计,全程跟进。
金科.廊桥水乡的交通也是比较便利,就在轻轨一号线的旁边,小区配套也是很齐全吃喝玩乐都是具备,周边的学校都有10几所以上。这样好的地理位置在装修方面也是不能马虎的,所以金科.廊桥水乡4栋的客户在重庆装修公司里面找到我们,我们也感觉很荣幸。
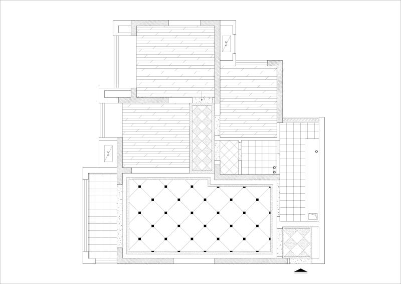
这个是前期我们设计师余恒舟出的设计图



下面的图片是经过三个月不到的时间装修出的效果





下一篇:重庆装修公司—田园风格装修案列
上一篇:重庆装修公司—春森彼岸装修案列


